










+3





Vezi toate 11 fotografii
COMPOZITORI-PRIMO APARTAMENT CU 3 CAMERE 78 MP RENOVAT LOC PARCARE
Primo, Constanta
3 Camere · 2 Băi · 78mp
200 vizualizări
€ 155.000
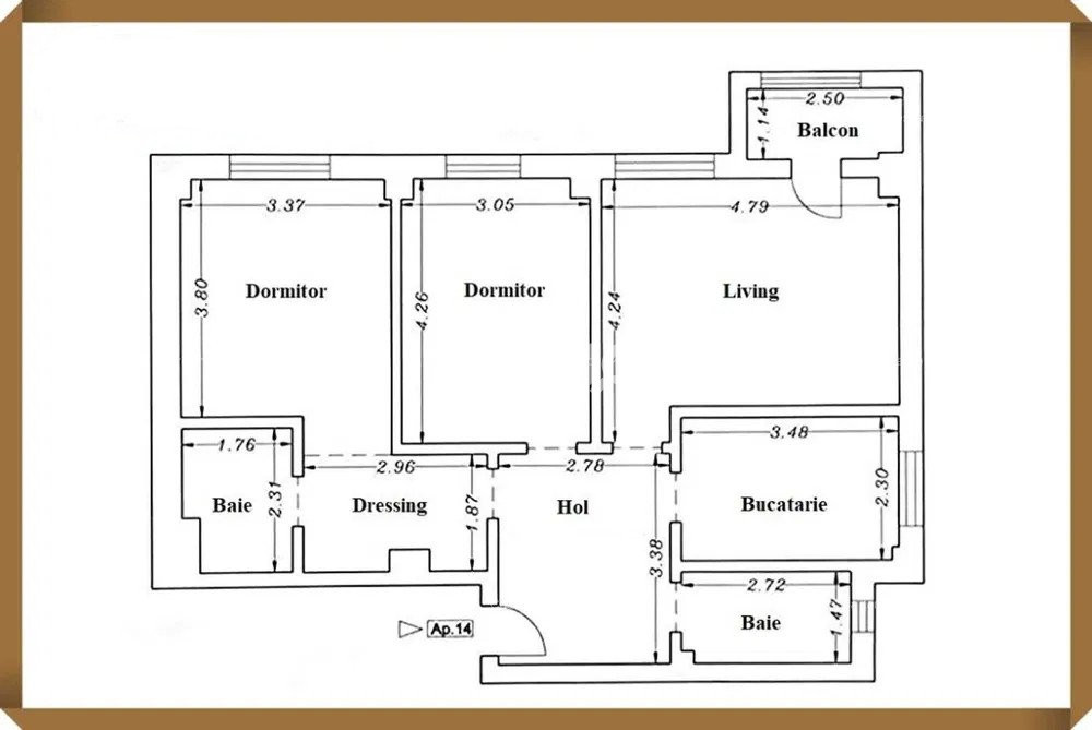
Apartament
3 Camere
2 Dormitoare
2 Băi
78 mp
Etaj 4/5
An 2018
Descriere
Apartament spațios cu 3 camere, curte interioară și loc de parcare – pregătit pentru mutare! Deximo vă propune spre vânzare un apartament luminos și generos, ideal pentru o familie care își dorește confort, liniște și un stil de viață echilibrat. Situat la etajul 4 al unui imobil aflat într-o zonă liniștită, acest apartament oferă intimitate, dar și acces facil la facilități esențiale. Caracteristici cheie: 3 camere decomandate, perfect compartimentate pentru intimitate și funcționalitate Dormitor matrimonial cu baie proprie – spațiul ideal pentru relaxare Bucătărie închisă, separată, cu potențial excelent de amenajare 2 băi moderne Dressing generos pentru organizare eficientă 3 aparate de aer condiționat pentru confort termic în orice sezon Loc de parcare inclus în preț Avantaje suplimentare: Curte interioară amenajată cu locuri de joacă pentru copii și spații verzi – o adevărată oază urbană Apartamentul este pregătit pentru mutare – trebuie doar mobilat și utilat după bunul plac Documentația este completă, actele sunt pregătite pentru vânzare Te invităm la vizionare pentru a descoperi farmecul și potențialul acestei proprietăți deosebite!
Detalii
Tip proprietateApartament
TranzacțieVânzare
Camere3
Dormitoare2
Băi2
Suprafață utilă78 mp
Suprafață construită80 mp
Etaj4 / 5
An construcție2018
CompartimentareDecomandat
Confortlux
Facilități
WC ServiciuApometreContor gazNemobilatInterfondecomandatConfort luxbeton
Utilități
Curent
Apa
Canalizare
Gaz
Încălzire: Centrala proprie, Calorifere
Finisaje
Izolatii termice
Exterior
Pereti
Vopsea lavabila
Podele
ParchetGresie
Ferestre cu geam termopan
PVC
Usa intrare
Metal
Usi interior
Lemn
Locație aproximativă
Primo, Constanta· Zona aproximativă

Senior Broker
Senior Broker




