





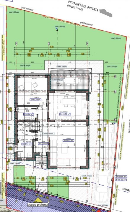
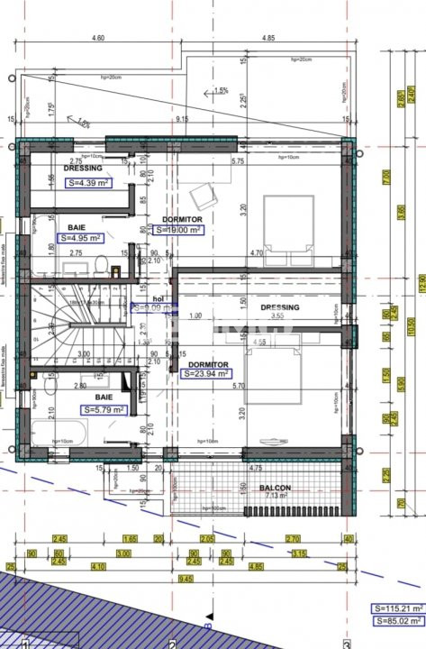
Deximo va propune spre vanzare un teren in suprafata de 400 mp cu proiect si autorizatie de construire pentru vila moderna formata din parter si un etaj.
Terenul este pozitionat in cartierul Palazu Mare, intr-o zona de case, cu acces usor la soseaua principala si toate utilitatile la poarta.
Mentionam ca autorizatia de construire este in termen, astfel ca viitorul propietar poate incepe lucrarile.
Pentru mai multe detalii va rugam sa ne sunati.