







Situat în una dintre cele mai căutate zone din Constanța, acest apartament cu 4 camere decomandate din Faleza Nord, oferă combinația ideală între confort, spațiu și proximitate față de mare. La doar 7 minute de mers pe jos se află plaja amenajată și începutul Stațiunii Mamaia, ceea ce îl face perfect atât pentru locuit, cât și pentru investiție.
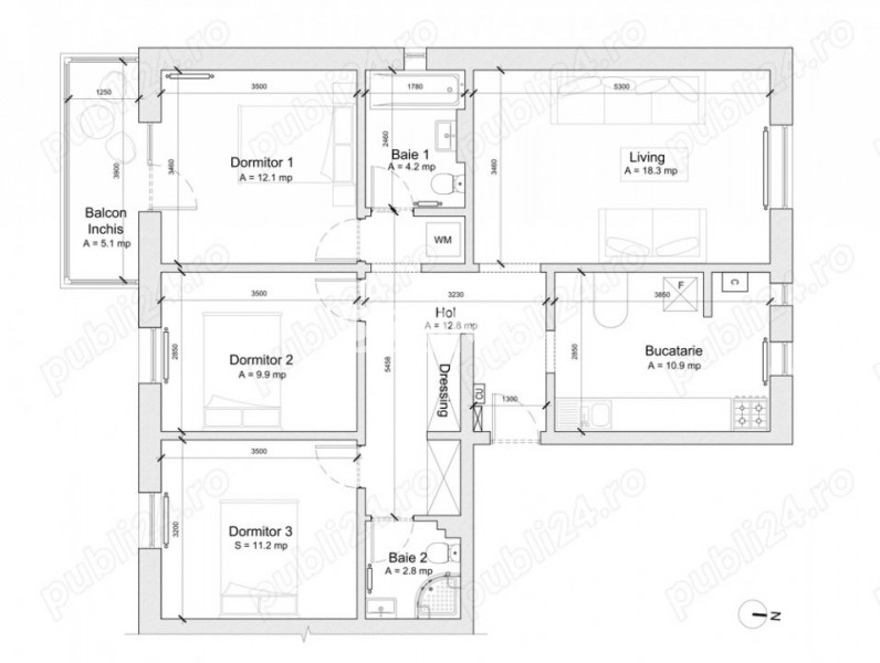
Apartamentul are o suprafață utilă de 87 mp inclusiv balconul și este amplasat la etajul 3 din 4, într-un bloc cochet, cu doar 10 apartamente, oferind astfel un plus de intimitate și liniște. Compartimentarea este practică și eficientă: cele trei dormitoare sunt orientate Est-Vest, ceea ce le face luminoase și bine aerisite pe tot parcursul zilei, livingul este orientat către Vest, oferind o lumină caldă după-amiaza, iar bucătăria are o orientare Nord, menținând un climat plăcut în timpul verii.
Locuința beneficiază de un balcon închis, perfect pentru depozitare sau ca spațiu de relaxare, iar dotările includ centrală termică pe gaz, calorifere din fontă, țevi PPR și geamuri termopan bicameral, pentru un confort termic sporit. Finisajele sunt de calitate: parchet lamelar în camere, gresie și faianță în băi, iar ușile interioare sunt din stejar masiv. Apartamentul se vinde semimobilat, ceea ce permite o mutare rapidă sau, din contră, personalizarea completă după gustul noului proprietar.
Zona Faleza Nord este ideală pentru familii sau pentru cei care își doresc un apartament de vacanță sau o investiție sigură, având acces facil la plajă, restaurante, școli, mijloace de transport și toate facilitățile urbane esențiale.
O locuință echilibrată între confort, lumină naturală, liniște și acces rapid la mare – o oportunitate rară în această zonă.
Va Asteptam La Vizionare !