Deximo utilizează fişiere de tip cookie pentru a personaliza și îmbunătăți experiența ta pe Website-ul nostru. Înainte de a continua navigarea pe Website-ul nostru te rugăm să aloci timpul necesar pentru a citi și înțelege conținutul Politicii de Cookie. Prin continuarea navigării pe Website-ul nostru confirmi acceptarea utilizării fişierelor de tip cookie conform Politicii de Cookie.
Acest anunt nu mai este activ !

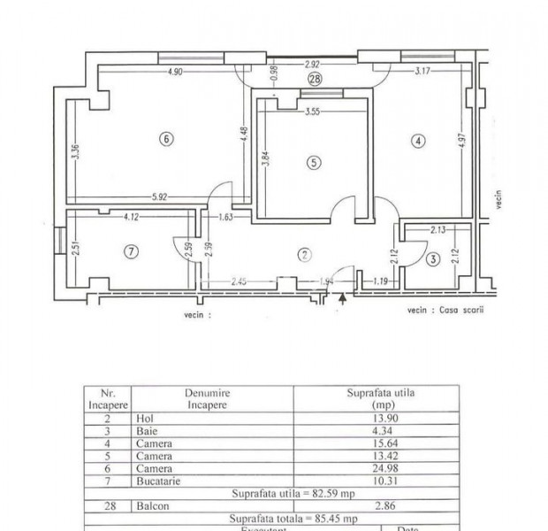
Apartament 3 Camere - Zona Compozitori - Mobilat/Utilat - Loc De Parcare

Constanta, Kamsas

118.900€
ID: P3743 465 retras
  • Nr. camere:3
  • S. utila:85.00 mp
  • S. construita:95.00 mp
  • Comp.:Decomandat
  • Confort:1
  • Etaj:Etaj 3
  • Nr. bucatarii:1
  • Nr. bai:1
  • Nr. balcoane:1
  • An constructie:2012
  • Structura:BCA
  • Tip imobil:Bloc
  • Regim inaltime:P+5

Deximo va prezinta spre vanzare un apartament modern si spatios in suprafata de 85 mp , de 3 camere decomandate, situat in Zona Kamsas, la etajul 3 al unui bloc de 5 etaje, compartimentat astfel : living, hol, bucatarie, 2 dormitoare, grup sanitar, balcon. La interior, dispune de finisaje moderne si se vinde mobilat si utilat complet dupa cum se poate vedea in fotografii, dotat cu centrala pe gaze. In pretul imobilului intra un loc de parcare aflat in proprietate si o boxa la mansarda ideala pentru depozitare.
Imobilul beneficiaza de o suprafata generoasa, fiind ideal pentru o familie cu copii.
Toate actele sunt pregatite pentru vanzare.
Va asteptam la vizionare !

Utilitati
  • Utilitati generale: Curent, Apa, Canalizare, Gaz, CATV
  • Sistem incalzire: Centrala proprie, Calorifere
  • Climatizare: Aer conditionat
Finisaje
  • Izolatii: Exterior
  • Pereti: Vopsea lavabila
  • Podele: Parchet, Gresie
  • Stare: Finisat
  • Ferestre: PVC
  • Usa intrare: Metal
  • Usa interior: Celulare
Dotari
  • Bucatarie: Mobilata
  • Contorizare: Apometre, Contor gaz
  • Mobilat: Complet
  • Imobil: Interfon

Groze Ionel

Senior Broker

Contacteaza-ma

Groze Ionel

0724310800