







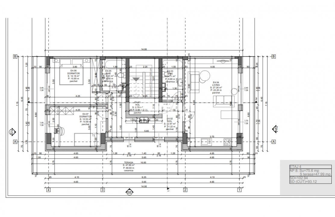
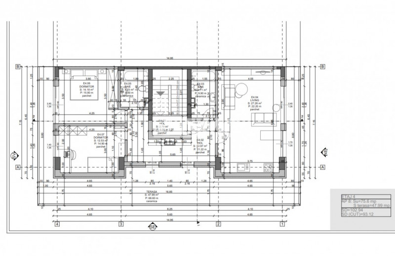
Deximo va prezinta spre vanzare un apartament modern si spatios in suprafata de 123 mp ( din care 47 mp terasa), de 3 camere decomandate, situat in Zona Compozitori, la ultimul etaj al unui bloc de 4 etaje, compartimentat astfel : living, hol, bucatarie open space, 2 dormitoare, 2 grupuri sanitare, terasa spatioasa amenajata. La interior, dispune de finisaje moderne si se vinde partial mobilat ( cu bucataria mobilata si dressingul din dormitorul matrimonial), dotat cu centrala pe gaze si aparat de aer conditionat. In pretul locuintei este inclus un loc de parcare suprateran.
Imobilul beneficiaza de o suprafata generoasa, fiind ideal pentru o familie cu copii.
Toate actele sunt pregatite pentru vanzare.
Va asteptam la vizionare !
Pentru mai multe oferte si fotografii puteti accesa portarurile noastre :
deximo.ro / constanta-imobiliare.ro / mamaianord.com /