Deximo utilizează fişiere de tip cookie pentru a personaliza și îmbunătăți experiența ta pe Website-ul nostru. Înainte de a continua navigarea pe Website-ul nostru te rugăm să aloci timpul necesar pentru a citi și înțelege conținutul Politicii de Cookie. Prin continuarea navigării pe Website-ul nostru confirmi acceptarea utilizării fişierelor de tip cookie conform Politicii de Cookie.
Acest anunt nu mai este activ !

Apartament 3 Camere Semidecomandate - Zona Inel II - Balcon

Constanta, Inel II

48.000€
ID: P3260 354 retras
  • Nr. camere:3
  • S. utila:45.00 mp
  • S. construita:55.00 mp
  • Comp.:Semidecomandat
  • Confort:1
  • Etaj:Etaj 4
  • Nr. bucatarii:1
  • Nr. bai:1
  • Nr. balcoane:1
  • An constructie:1979
  • Structura:Beton
  • Tip imobil:Bloc
  • Regim inaltime:P+4

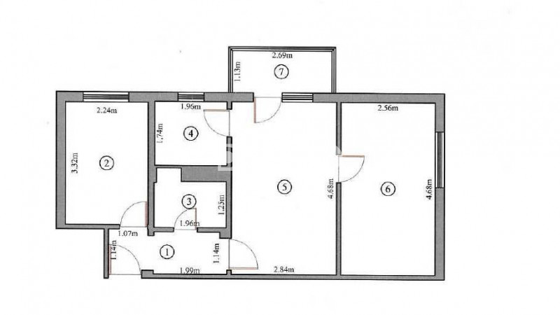
Deximo va prezinta spre vanzare un apartament in suprafata de 45 mp, de 3 camere semidecomandate, situat in Zona Inel II, la ultimul etaj al unui bloc de 4 etaje, compartimentat astfel : living, hol, bucatarie, 2 dormitoare, grup sanitar, este in curs de renovare, dispune de geamuri termopan noi, usa metalica noua, iar gazele se afla la usa.
Imobilul se afla in apropiere de magazine, scoli si mijloace de transport in comun.
Toate actele sunt pregatite pentru vanzare.
Va recomandam vizionarea acestei proprietati, iar in cazul in care va este pe plac cu siguranta ne vom intelege si asupra pretului de vanzare.

Utilitati
  • Utilitati generale: Curent, Apa, Canalizare, Fibra optica
  • Sistem incalzire: Termoficare, Calorifere
Finisaje
  • Pereti: Vopsea lavabila
  • Stare: Buna
  • Ferestre: PVC
  • Usa intrare: Metal
  • Usa interior: Celulare
Dotari
  • Bucatarie: Nemobilata
  • Contorizare: Apometre
  • Mobilat: Nemobilat
  • Imobil: Interfon

Groze Ionel

Senior Broker

Contacteaza-ma

Groze Ionel

0724310800