Deximo utilizează fişiere de tip cookie pentru a personaliza și îmbunătăți experiența ta pe Website-ul nostru. Înainte de a continua navigarea pe Website-ul nostru te rugăm să aloci timpul necesar pentru a citi și înțelege conținutul Politicii de Cookie. Prin continuarea navigării pe Website-ul nostru confirmi acceptarea utilizării fişierelor de tip cookie conform Politicii de Cookie.
Acest anunt nu mai este activ !

Apartament 3 Camere - Casa De Cultura - Etaj Intermediar - Centrala Pe Gaze

Constanta, Casa de Cultura

86.000€
ID: P5273 273 retras
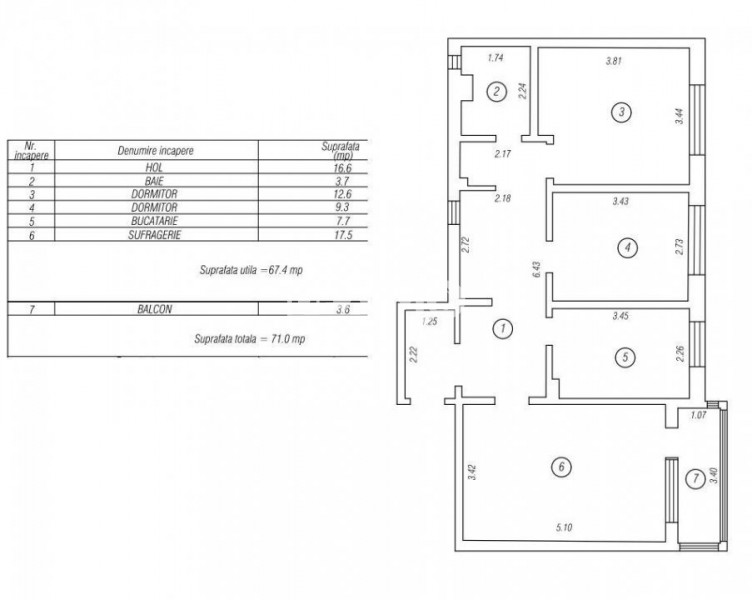
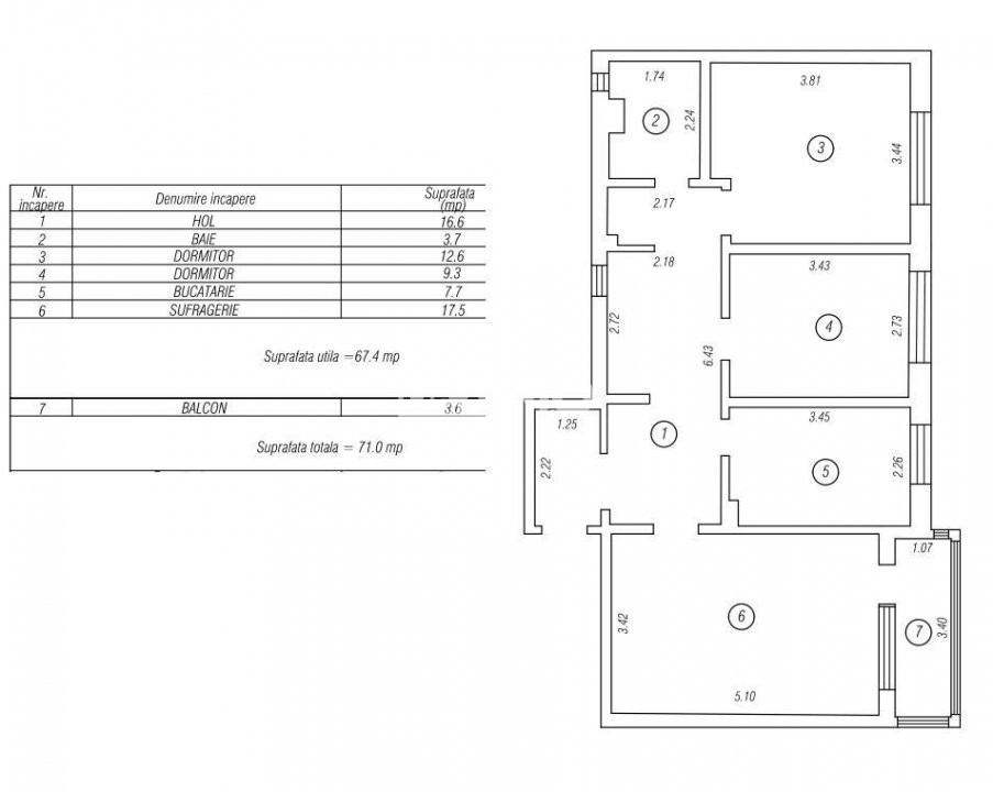
  • Nr. camere:3
  • S. utila:71.00 mp
  • S. construita:80.00 mp
  • Comp.:Decomandat
  • Confort:1
  • Etaj:Etaj 7
  • Nr. bucatarii:1
  • Nr. bai:2
  • Nr. balcoane:1
  • An constructie:1979
  • Structura:Beton
  • Tip imobil:Bloc
  • Regim inaltime:P+10

Deximo va prezinta spre vanzare un apartament clasic si spatios in suprafata de 71 mp, de 3 camere decomandate, situat in Zona Casa de Cultura, la etajul 7 al unui bloc de 10 etaje cu lift, compartimentat astfel : living, hol, bucatarie, 2 dormitoare, 2 grupuri sanitare, balcon cu vedere stradala. La interior, dispune de finisaje clasice dar se poate moderniza dupa bunul plac si buget al viitorului proprietar, dotat cu centrala pe gaze si aparat de aer conditionat.
Imobilul beneficiaza de o suprafata generoasa, fiind ideal pentru o familie cu copii.
Toate actele sunt pregatite pentru vanzare.
Va asteptam la vizionare !

Utilitati
  • Utilitati generale: Curent, Apa, Canalizare, Gaz, CATV
  • Sistem incalzire: Centrala proprie, Calorifere
  • Climatizare: Aer conditionat
Finisaje
  • Izolatii: Exterior
  • Pereti: Vopsea lavabila
  • Podele: Parchet
  • Stare: Necesita renovare
  • Ferestre: Lemn
  • Usa intrare: Lemn
  • Usa interior: Lemn
Dotari
  • Bucatarie: Mobilata, Utilata
  • Contorizare: Apometre, Contor gaz
  • Mobilat: Complet
  • Imobil: Interfon, Lift

Cristi Rosca

Senior Broker

Contacteaza-ma

Cristi Rosca

0724370996