






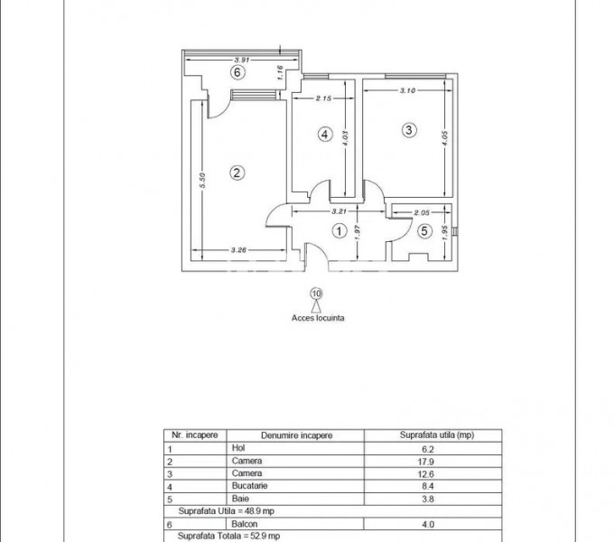
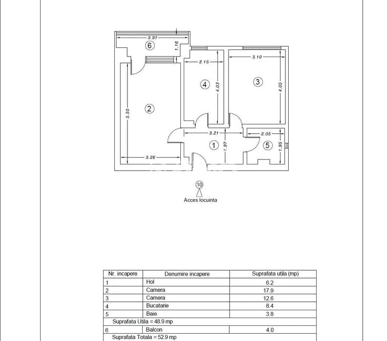
Deximo va prezinta spre vanzare un apartament clasic in suprafata de 53 mp, de 2 camere decomandate, situat in Zona Tomis II, la etajul 3 al unui bloc de 4 etaje, compartimentat astfel : living, hol, bucatarie, dormitor, grup sanitar, balcon. La interior, dispune de finisaje clasice si se vinde mobilat si utilat complet dupa cum se poate vedea in fotografii, iar agzele se afla pe scara. Locuinta are in folosinta o boxa de 9 mp ideala pentru depozitare si un loc de parcare rezervat de la primarie.
Imobilul este pozitionat excelent, aproape de magazine, scoli, licee, parc si mijloace de transport in comun.
Toate actele sunt pregatite pentru vanzare.
Va asteptam la vizionare !