





Vă propunem spre vânzare un apartament de 2 camere decomandate, situat la etajul 2 din 4, într-un imobil amplasat în zona Inel I, cu vedere spre strada Soveja.
Locuința dispune de centrală proprie pe gaz, oferind confort termic sporit și costuri reduse la întreținere. Apartamentul se află într-o stare bună, fiind ideal pentru personalizare după propriul gust.
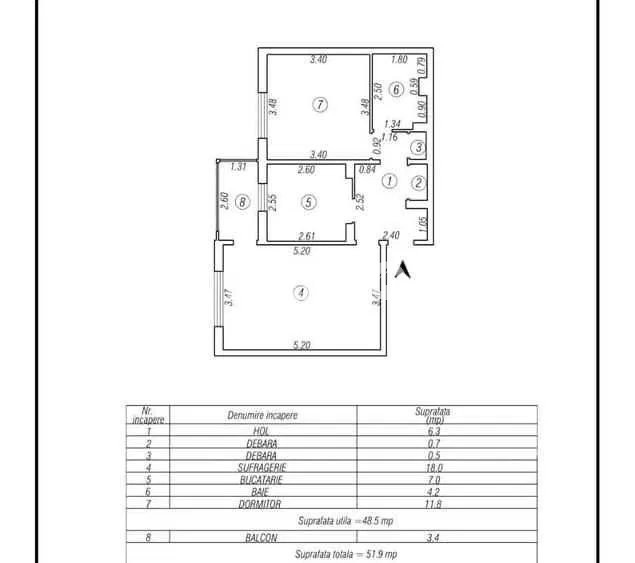
Compartimentarea este eficientă – living luminos cu acces la balcon, dormitor spațios, bucătărie separată și baie cu geam. Zona este una foarte căutată, cu acces facil către mijloace de transport, școli, magazine și alte puncte de interes.
2 camere decomandate
Etaj 2 / 4
Centrală pe gaz
Vedere stradală – Soveja
Ideal pentru amenajare după preferințe
Loc parcare de la primarie
Un apartament potrivit atât pentru locuință proprie, cât și pentru investiție!