Deximo utilizează fişiere de tip cookie pentru a personaliza și îmbunătăți experiența ta pe Website-ul nostru. Înainte de a continua navigarea pe Website-ul nostru te rugăm să aloci timpul necesar pentru a citi și înțelege conținutul Politicii de Cookie. Prin continuarea navigării pe Website-ul nostru confirmi acceptarea utilizării fişierelor de tip cookie conform Politicii de Cookie.

Alpha Residence - Xtreme Building Management

Constanta, zona Km 5

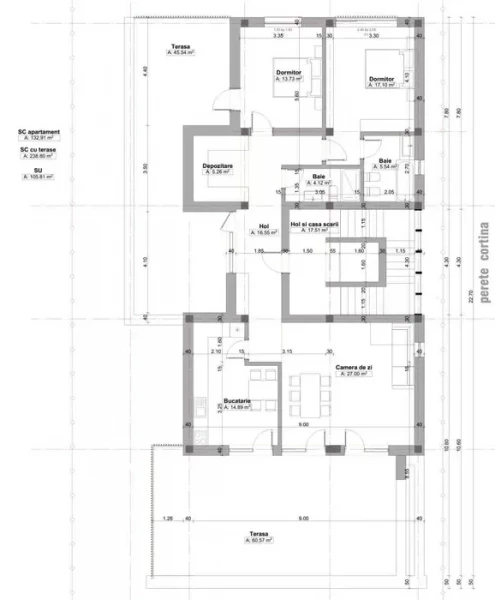
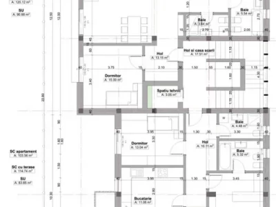
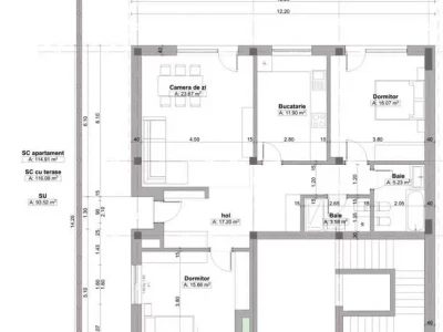
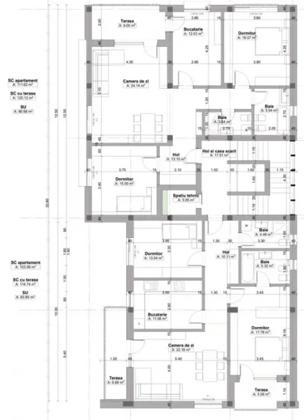
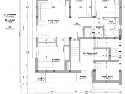
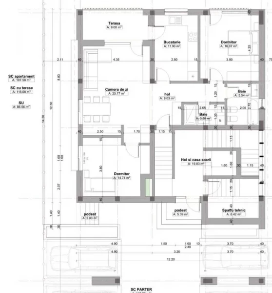
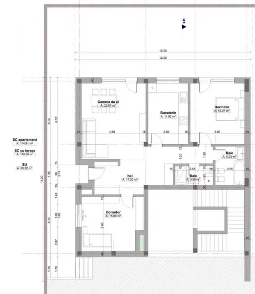
Xtreme Building Management Srl a început construcția proiectului Alpha Residence, două blocuri moderne D+P+3 retras, formate fiecare din 7 apartamente spațioase, bine compartimentate, având 3 camere, bucatărie, 2 băi.
Blocurile vor dispune de cate 10 locuri parcare private, toată tâmplăria va fi din aluminiu culoare antracit cu geam tripan, încalzire în pardoseală, lift interior, perete cortină în dreptul scării interioare.
Blocurile vor fi racordate la curent electric, apă, canalizare, gaz, fiind situate pe strada General Gheorghe Anghelescu nr.6, zona veterani Constanța Sud, într-un cartier aflat în plină dezvoltare (langa South Side Residence), peste drum de Metro 2 și Auchan Sud.